地址:江苏省常州市焦溪镇
电话:0519-88908918
88908968
传真:0519-88906768
手机:13701597866
邮箱:kl@kldry.com
网址:www.kldry.com

一、项目描述
浙江正奇化工有限公司一九九四年建成投产,是国内^早专业生产透明氧化铁系列颜料和色浆的高科技企业,产品包括粉体:黄、红、绿、棕、黑五种颜色,分溶剂型、通用型两大系列,多种牌号;色浆颜色有黄、红、绿、棕、黑五种颜色,分工业漆通用型、木器漆专用型、水性三大系列。公司同时生产各种有机颜料色浆。
浙江正奇化工有限公司在参观完常州科龙公司制作的高温烘箱以及了解相关公司情况后于2015-9月6定制了一台CT-C-II型500度的高温烘箱.
二、 设备概述
物料:颜料
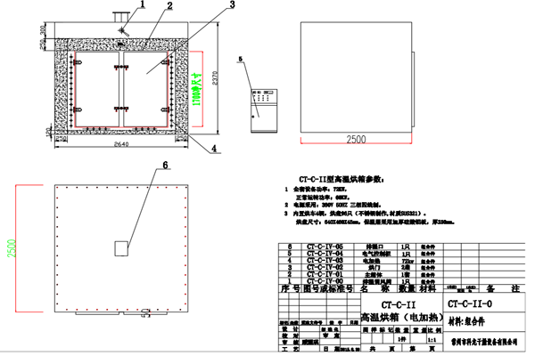
1、 箱体内型尺寸:(宽×深×高)1720×2040×1710 mm。
2、 箱体外型尺寸:(宽×深×高)2640×2500×2360 mm。
3、 设计温度:^高为550℃。
4、 使用温度:500℃(可调节)。
5、 电加热功率:72kw,(实用60 kw)。
6、 升温时间:~2小时。
7、 温差:~10-20℃。
8、 装载量:240-300kg/批。
9、 加热方式:箱体两侧及底部加热。
三、 设备特点
由于设计温度在500度,所以相对于普通烘箱来说,设备在保温和设备在使用过程中升温很重要,设备采用电加热的方式,材质石英管。为了确保温度的均匀,设备内部采用分风冲孔板不锈钢制作。在电器控制方面采用固特控制技术,分2组控制,以一个温度点为标准。
思、设备流程图

五、 制作现场图片

