地址:江苏省常州市焦溪镇
电话:0519-88908918
88908968
传真:0519-88906768
手机:13701597866
邮箱:kl@kldry.com
网址:www.kldry.com

项目描述:
马鞍山首拓新能源科技有限公司在参观完常州科龙公司的喷雾干燥设备以及了解相关公司情况后于2015-6-23定制了一台离心喷雾干燥机.
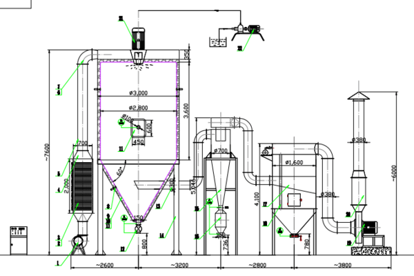
一、 工程概述
该喷雾塔总高8.0m,直径2.8m,干燥段高度3.6m,下锥体高度2.3m,出料段高度0.8m,可以处理原料液170kg.^大蒸发量为150kg/h,电源为电加热,功率240kw,实用170-200kw。
二、 设备原理
系统工作原理:空气经过滤和加热,进入干燥器顶部空气分配器,热空气呈螺旋状均匀地进入干燥室。料液经塔体顶部的高速离心雾化器,(旋转)喷雾成极细微的雾状液珠,与热空气并流接触在极短的时间内可干燥为成品。成品连续地由干燥塔底部和旋风分离器中输出,废气由风机排空。
雾化器工作原理:当料液送入雾化器的进料管时,经一次或两次料液分配后,迅速送到高速旋转的雾化盘上,由于离心力的作用,使料液在旋转的雾化盘表面上伸展为薄膜,并以不断增长的速度向盘的边缘运动,当离开盘的边缘时,料液即雾化,有滴状,丝状及膜状分裂,以哪一种分裂为主则与雾化器的转速、进料量、料液性质及雾化盘的形状、直径等因素有关,而液滴大小主要取决于雾化盘的圆周速度。
三、 设备特点
干燥速度快,料液经高速离心雾化器雾化后表面积大大增加,在热风气流中,瞬间就可蒸发95%-98%的水份,完成干燥时间仅需数秒,特别适用于热敏性物料的干燥。
产品具有良好的均匀度、流动性和溶解性,产品纯度高,质量好。生产过程简化,操作控制方便。对于含湿量40—60%(特殊物料可达90%)的液体能一次干燥成粉粒产品,干燥后不需粉碎和筛选,减少生产工序,提高产品纯度。对产品粒径,松密度,水份,在一定范围内可通过改变操作条件进行调整,控制和管理都很方便。
四、 工程发货图片:

五、工艺流程图:
