地址:江苏省常州市焦溪镇
电话:0519-88908918
88908968
传真:0519-88906768
手机:13701597866
邮箱:kl@kldry.com
网址:www.kldry.com

一、 工程概述
北京英惠尔生物技术有限公司在参观完常州科龙公司的多功能制粒包衣机以及了解相关公司情况后于2016-5-3定制了1台DPL-500多功能制粒包衣机
二、 设备主要技术参数
1、型号:DPL-500;
2、^大工作容积:底喷:1600L,
3、温度范围:室温~120℃(自动调节);
4、蒸汽耗量:~650kg/h;
5、每批生产能力:底喷300~500 kg/批。
6、物料收得率:≥99%。
7、风机:功率45kw,风量8000m³/h,风压9000pa。
8、压缩空气耗量:3.0 m³/min,压力0.4-0.6Mpa。
9、蠕动泵功率:0.3kw。
10、设备重量:6500kg。
11、设备安装高度:~5.2m
12、出料方式:气流输送吸料,余料采用摇臂倾斜清料。
设备描述:
1、集干燥、混合、制粒、包衣与一机内完成,整个操作过程在密闭容器内完成,无粉尘飞扬。
2、流化床流化网板采用国内^先进的三层席形交叉编制网板,透气性好,物料不下漏。
3、筒体采用两室间隔清灰抖袋,左右自动连续工作。布袋采用抗静电无纺布制造。
4、空气过滤系统采用初、中、亚高效过滤,达到10万级空气净化,符合GMP规范要求。
5、雾化系统采用本厂特制的三流体喷枪,雾化均匀,制粒效果好。
6、设备材质采用SUS304优质不锈钢钢板,内外壁均进行抛光处理,焊接部分均采用圆弧过渡,无死角,便于清灰,符合GMP规范要求。
7、引风机底部采用风机减振器,风机进口端装有软连接,同时将之与主机隔离安装,噪音≤75d(B),符合GMP规范要求。
8、控制系统采用PLC可编程控制,自动控制进口温度技术,采用中文触摸式显示屏,实现智能化控制,设有互锁功能,因此不会产生误操作。
9、设备设有底喷包衣装置,从而实现一机多用。
底喷原理:
底喷工作原理:一个圆锥形的物料槽,料槽内部装有一个两边开口的圆柱形隔圈,料槽底部装有不同开口状态的筛板以分配隔圈内及隔圈外的气流状态。开口面积大的地方位于隔圈的正下方,这样流化的空气大部分通向这一部位,有足够的气流保证物料能顺畅的从隔圈外流向隔圈内,隔圈内的物料由于进风气流的推力自扩展室内运动,当物料自身重力克服了越来越强的推力后,落入隔圈外形成了一个循环的流动状态。

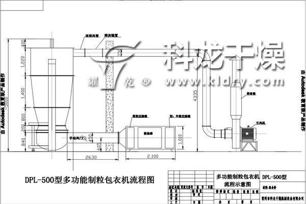
三流式雾化器结构示意图

多功能制粒/包衣机底喷方式工作原理图

现场制作完成图
