地址:江苏省常州市焦溪镇
电话:0519-88908918
88908968
传真:0519-88906768
手机:13701597866
邮箱:kl@kldry.com
网址:www.kldry.com

一、 工程概述
浙江富锦新材料有限公司在参观完常州科龙公司的盘式干燥设备以及了解相关公司情况后于2015-6-15定制了一台YR-2200×12层盘式干燥机.
二、 工程优势
该设备调控容易、适用性强 ,操作简单、容易,能耗低,安装方便、占地面积小。
三、工程应用案例

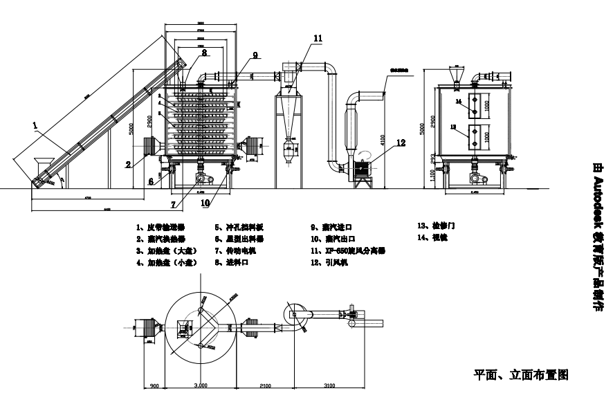
四、设备流程图:
