地址:江苏省常州市焦溪镇
电话:0519-88908918
88908968
传真:0519-88906768
手机:13701597866
邮箱:kl@kldry.com
网址:www.kldry.com

项目描述
高碑店市鸿旭金属粉末加工有限公司,是一个集采矿、选矿、冶炼、加工为一体,以铅、锌、铜和稀贵稀有金属冶炼为主的大型有色金属联合企业。现有铜、铅锌矿山三座,铜、铅、锌、氧化锌和无汞锌粉冶炼厂各一座,有国内^的铍冶炼厂、砷产品生产基地。
一、 工程概述
金属粉末是指尺寸小于1mm的金属颗粒群。包括单一金属粉末、合金粉末以及具有金属性质的某些难熔化合物粉末,是粉末冶金的主要原材料。金属粉末可作为粉末冶金制品的原料,也可以直接应用。
针对铜粉等金属粉末的比重大、体积小装料量多的特性,我司更改了常用V型混合机,采用混合、干燥、真空一体的方式。
二、 设备概述
金属粉末是红色的,金属粉末是在不同状态下的同种物体,由于漫反射的关系常态下呈深红色。用于制造化学用具、电力用具、建筑材料和其他工业装置及用具。V型混合机是集混合-干燥于一体的新型干燥机。本机设计先进,内部结构简单,清扫容易,物料能够全部排出,操作简便。
三、 设备描述
V型混合机是回转罐体,罐内在真空状态下,向夹套内通入蒸汽或热水进行加热,热量通过罐体内壁与湿物料接触。湿物料吸热后蒸发的水汽,通过真空泵经真空排气管被抽走。由于罐体内处于真空状态,且罐体的回转使物料不断的上下,内外翻动,故加快了物料的干燥速度,提高干燥效率,达到均匀干燥的目的。
四、 设备特点
1、 油加热时,采用自动恒温控制,可以干燥生化制品和矿物原料,温度可在20~200℃之间温差在±2℃以内。
2、 效率搞,比一般烘箱提高2倍以上
3、 间接加热,物料不会被污染,符合"GMP" 要求。设备维修操作简便,易清洗。
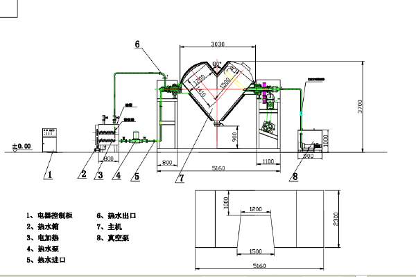
五、设备流程图

六、 制作现场图片
